Somlóvásárhely - Eladó Ház
75 m2
31.900.000 Ft
349508
Otthon a Somló lábánál – bájos családi ház eladó!
Leírás
Otthon a Somló lábánál – bájos családi ház eladó!
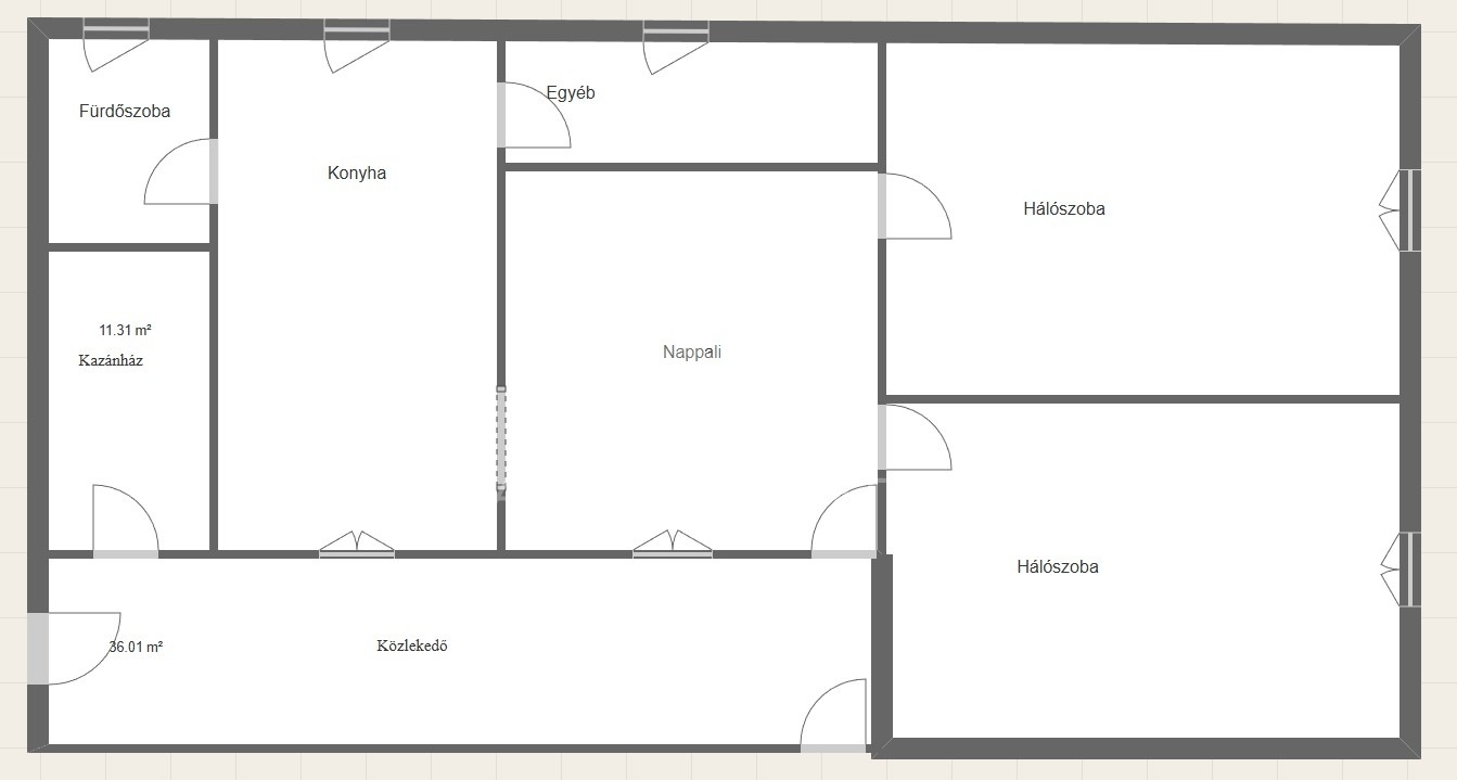
A festői szépségű Somlóvásárhely csendes utcájában kínálunk megvételre egy 75 m²-es, szerethető hangulatú családi házat, amely kisebb felújítás után igazi ékszerdobozzá válhat.
Somlóvásárhely a tanúhegyként magasodó Somló lankái alatt megbúvó, nyugodt és méltóságteljes település, ahol a híres somlói borok, a történelmi hagyományok és a vidéki béke különleges, időtlen atmoszférát teremtenek – ideális választás mindazoknak, akik természetközeli, mégis jól megközelíthető otthonra vágynak.
Az ingatlan jellemzői:
• 75 m² lakótér
• 2 szoba + nappali
• konyha
• fürdőszoba + WC
• kis spájz
• vegyes falazat (kő és túlnyomórészt tégla)
• nyeregtető cserép fedéssel
• parkettás szobák és nappali
A nappaliban található kandalló meglepően hatékonyan biztosítja az otthon melegét, melyhez a födém kőzetgyapotos szigetelése is hozzájárul.
A víz- és villanyvezetékek cseréje már megtörtént, valamint korszerű műanyag nyílászárók kerültek beépítésre.
Az épülethez tartozik:
• egy hangulatos, beépített terasz
• egy jelenleg tárolóként használt garázs, amely az utcáról is megközelíthető
Elhelyezkedés és környezet:
A faluban minden megtalálható, ami a kényelmes mindennapokhoz szükséges: bolt, iskola, orvosi rendelő.
A közelben található Devecser és Ajka, valamint a település mellett halad a 8-as főút, amely kiváló közlekedést biztosít akár Ausztria irányába is.
A Balaton könnyen elérhető, és több népszerű termálfürdő – például Sárvár, Bük vagy Mesteri – is kényelmes távolságon belül található.
Ha egy nyugodt, természetközeli, mégis jól megközelíthető otthonra vágyik, amelyben saját elképzelései szerint alakíthatja ki álmai életterét, ne hagyja ki ezt a lehetőséget!
Iraányár : 31,9 Mft
További információkért forduljon hozzám bizalommal, akár hétvégén is! :)
– Megbízható ÜGYVÉDI HÁTTÉR.
– ENERGETIKAI TANÚSÍTVÁNY és INGATLAN ÉRTÉKBECSLÉS készítése.
– BANKFÜGGETLEN hitelek, állami támogatások, személyi kölcsönök, megtakarítások és lakástakarékok INGYENES ügyintézése, több, mint 10 éves szakmai tapasztalattal.
– Profi INGATLANFOTÓZÁS és -VIDEÓZÁS.
Az esetleges elírások és változtatások jogát fenntartjuk!
Az ingatlan megtekintése ELŐRE EGYEZTETETT IDŐPONTBAN történik!
KERESÜNK ELADÓ/KIADÓ INGATLANOKAT VESZPRÉM MEGYÉBEN ÉS A BALATON KÖRNYÉKÉN TÖBB, MINT 15 ÉVES SZAKMAI TAPASZTALATTAL!
Kapcsolati adatok
Érdeklődjön az ingatlanról, e-mailben!
Hasonló ingatlanok
Ajka
Megtalálta új otthonát Ajkán! A Csikólegelő csendes, kedvelt rés...
Bicske
HANGULATOS, KÜLÖN BEJÁRATÚ TULAJDONRÉSZ BICSKE KERTVÁROSÁBAN – N...