Fót - Eladó Ház
437 m2
399.000.000 Ft
348796
TÖBBGENERÁCIÓS VILLA A FÓTI KIRÁLYDOMBON
Leírás
TÖBBGENERÁCIÓS VILLA A FÓTI KIRÁLYDOMBON – TÁGAS TEREK, TERMÉSZETKÖZELI NYUGALOM
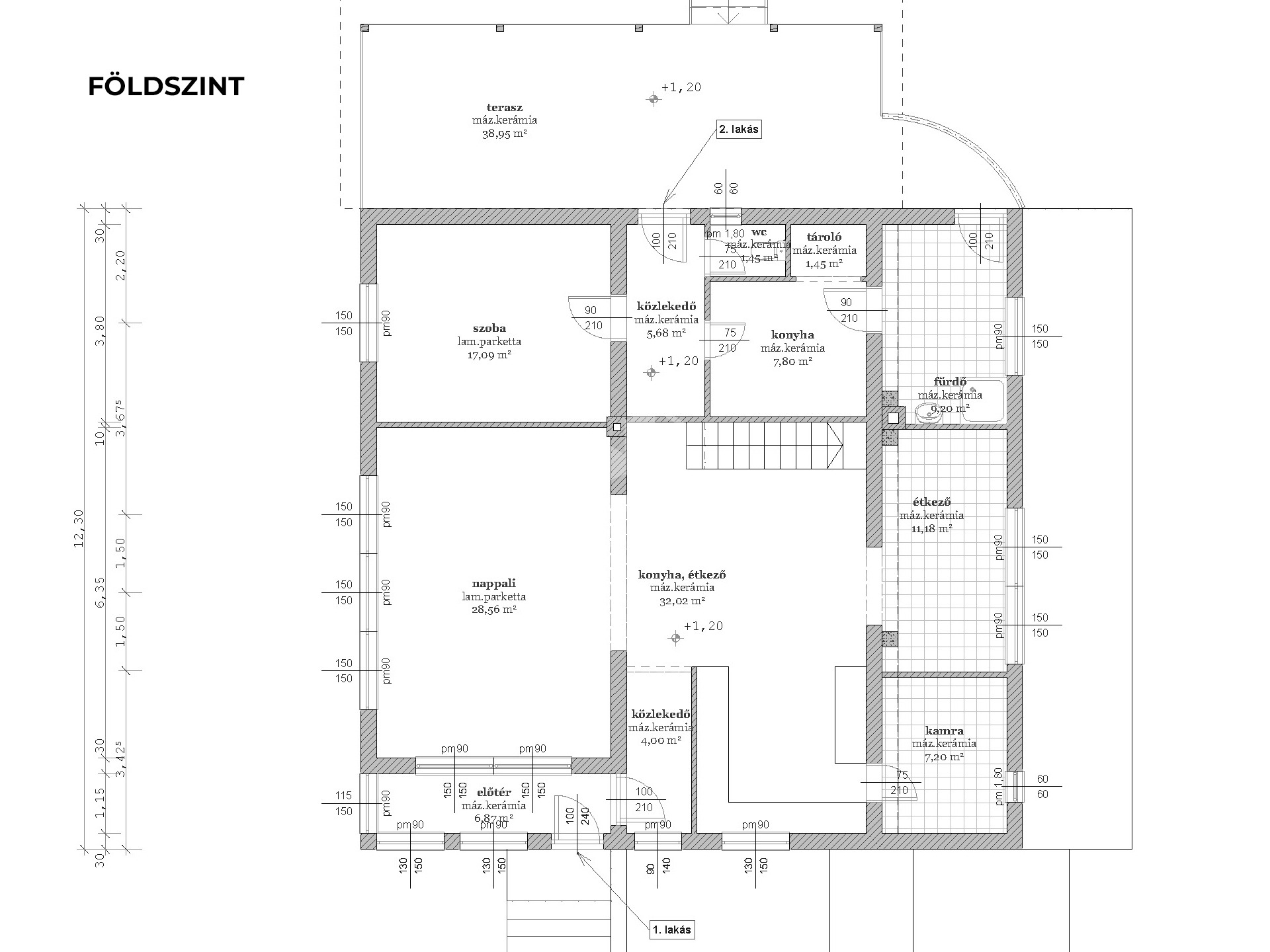
Fót egyik legkeresettebb részén, a Királydombon, közvetlenül erdőszomszédságban kínálunk megvételre egy 437 m² összterületű, 11 lakható helyiséget magában foglaló, rendkívül sokoldalúan használható villát. Az ingatlan ideális nagycsaládosoknak, többgenerációs együttélésre, de akár befektetési célra is, mivel két külön lakás is kialakítható, akár külön helyrajzi számmal.
Az ingatlan 2007-ben teljeskörű felújításon esett át: nyílászárók, tető és héjazat, hőszigetelés, fűtés–hűtés rendszer, burkolatok, villany- és közműhálózat cseréje is megtörtént. A ház műszaki tartalma ma is korszerű, jól átgondolt rendszerrel.
Főbb műszaki és kényelmi jellemzők
•15 cm külső hőszigetelés
•3 rétegű, UV-szűrős nyílászárók
•Belső tokos, alumínium redőnyök az ablakokon
•Buderus kondenzációs gázkazán
•Padló-, mennyezetfűtés és -hűtés
•Pince szinten radiátoros fűtés
•Olasz Edilkamin pellet kandalló
•3 fázis – összesen 46 A
•Ólomüveg ablakok és bejárati ajtó
•Süttői mészkő párkányok
•Tiffany lámpák
Szintek és elosztás
Földszint – 158 m² + 52,8 m² terasz
Tágas nappali, konyha–étkező, dolgozó, zongoraszoba, fürdő, szauna, kamra és nagy terasz, amely ideális családi és baráti összejövetelekhez, közvetlen kapcsolattal a kerthez és a természethez.
Emelet – 150 m² + terasz + 40 m² penthouse rész
Három hálószoba, több gardrób, fürdő, közlekedők és egy külön penthouse jellegű tér, amely akár önálló lakrészként is használható.
Pinceszint – 129 m²
Kétállásos garázs, konditerem, iroda, mosókonyha, gépészet és tárolók.
Kültér és extra funkciók
•Vegyszermentes úszómedence (44 m²) külön 80 m²-es medenceépülettel
•Automata öntözőrendszerrel ellátott, gondozott kert
•2 fúrt kút
•Flekkensütő, kemence, bográcsozó a teraszon
•Két utcáról megközelíthető telek
•Parkolás:
•ház előtt viacoloron 4 autó,
•kertben 2 autó,
•2 garázs
Lokáció – Fót, Királydomb
Infrastrukturálisan kiváló, mégis nyugodt, természetközeli környezet:
•Buszmegálló az utca végén
•Vasútállomás 10 perc sétára
•Autópálya 3 percen belül
•Budapest belvárosa kb. 30 perc
•Boltok, éttermek 5 percen belül
•Óvoda, iskola 10 perc gyalog
•Montessori magánóvoda
•Egészségügyi és magánegészségügyi központok
•Futópálya, horgásztavak, kerékpáros pálya, szabadidőpark a közelben
Ez az ingatlan ritka lehetőség a fóti Királydombon: erdő melletti elhelyezkedése, mérete, elosztása és műszaki tartalma egyszerre szolgálja ki a nagycsaládos életformát, a többgenerációs együttélést és a prémium befektetési célokat.
➡️ Hívjon bizalommal, egyeztessünk időpontot, és nézze meg személyesen – az ilyen adottságú ingatlanok ritkán kerülnek piacra.
Kapcsolati adatok
Érdeklődjön az ingatlanról, e-mailben!
Hasonló ingatlanok
Ajka
ELADÓ CSALÁDI HÁZ, AJKA- KERTVÁROSÁBAN, KIFOGÁSTALAN, BEKÖLTÖZHE...
Szentkirályszabadja
Csodálatos Birtok, 2 generációs családiház, saját minierdő vált ...